Beskrivelse
Astro med hybel er et stilig hus med saltak og et moderne uttrykk. Hybelen inneholder en åpen stue/kjøkkenløsning, samt et soverom og bad.
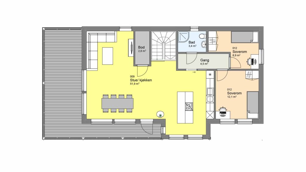
Hoveddelen av huset er innholdsrikt, med totalt fire soverom. I første etasje finner du to soverom, bad og vaskerom/teknisk rom. Med en romslig gang og bod under trapp får du god plass til oppbevaring.
I andre etasje er det to soverom, bad, en bod, og et stort og flott stue- og kjøkkenområde som gir en åpen og luftig romfølelse.
En stor veranda med utgang fra stua gir tak til inngangspartiet og en praktisk carport. Dette er et hus med mange muligheter, og kan enkelt deles inn etter dine behov og ønsker.
Nøkkelinformasjon
Boligtype
Enebolig
BRA
208.2 m2
BRA innvendig
178.6 m2
Soverom
5
Tomt
Flat tomt
BYA
136.6 m2
BRA utvendig
29.6 m2
Bad
3
Se flere bilder av Astro
Vi hjelper deg gjerne å gjøre tilpasninger
Ønsker du å gjøre endringer i planløsningen, eller tilpasse boligen til akkurat din tomt?
Vi hjelper deg med både store og små endringer, slik at drømmeboligen blir akkurat slik du vil ha den.
Kontakt oss for en hyggelig prat om ditt prosjekt.
post@norheimshus.no

Ulik grad av ferdigstillelse
Vi leverer fire forskjellige grader av ferdigstillelse;
● Råbygg
● Elektroklart
● Snekkerferdig
● Nøkkelferdig
Graden av ferdigstillelse gjenspeiler seg i prisen. Perfekt for deg som vil gjøre egeninnsats, eller bruke egne håndverkere.
Utforsk flere husmodeller
Solveig
Soverom: 4
BRA: 184.9 m2
Hermine
Soverom: 4
BRA: 209.8 m2
Tyrifjord 120
Soverom: 4
BRA: 119.7 m2
Tyrifjord 80
Soverom: 3
BRA: 80.7 m2












