Beskrivelse
Økosmart 1 er et hus for deg som ønsker å ha det enkelt og greit. Huset har to soverom, bad, gang, og et hyggelig stue- og kjøkkenområde med store vinduer og åpen himling.
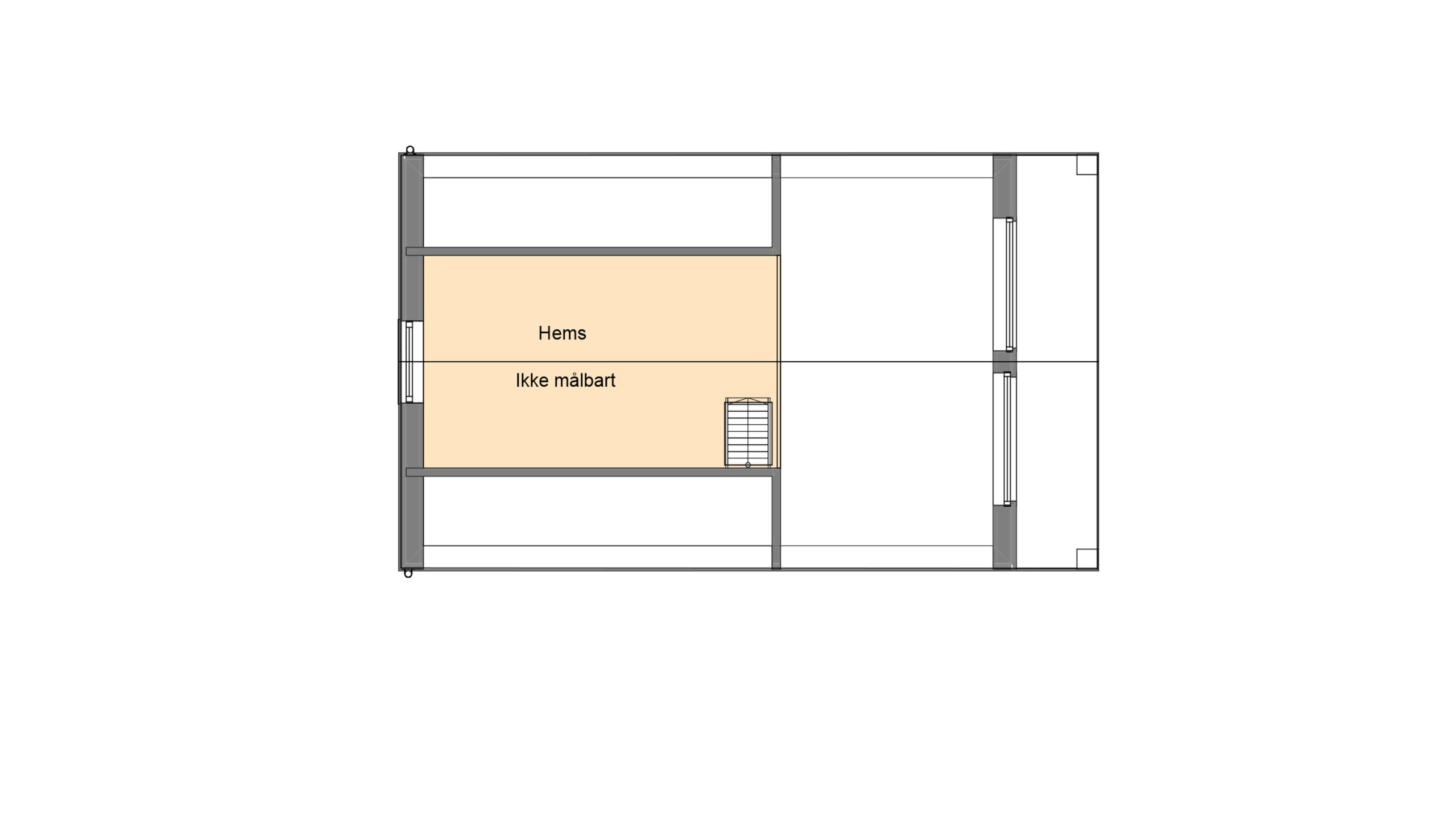
I gangen finner du en loftstrapp som kan dras ut og gir deg tilgang til en koselig hems som er åpen ned mot stue og kjøkken. Hemsen har ikke full høyde, men kan fint brukes til ekstra soveplass, lekerom eller oppbevaringsplass. En utvendig sportsbod gir lagring til sykler, hageredskaper og andre ting. Et praktisk hus med et lite fotavtrykk som likevel inneholder alt du trenger!
Nøkkelinformasjon
Boligtype
Enebolig
BRA
58.9 m2
Bredde
7.7 lm
Soverom
2
Gesimshøyde
3.2 lm
Tomt
Flat tomt
BYA
72.8 m2
Lengde
10.3 lm
Bad
1
Mønehøyde
5.2 lm
Se flere bilder av husmodell
Vi hjelper deg gjerne å gjøre tilpasninger
Ønsker du å gjøre endringer i planløsningen, eller tilpasse boligen til akkurat din tomt?
Vi hjelper deg med både store og små endringer, slik at drømmeboligen blir akkurat slik du vil ha den.
post@norheimshus.no

Ulik grad av ferdigstillelse
Vi leverer fire forskjellige grader av ferdigstillelse;
● Råbygg
● Elektroklart
● Snekkerferdig
● Nøkkelferdig
Graden av ferdigstillelse gjenspeiler seg i prisen. Perfekt for deg som vil gjøre egeninnsats, eller bruke egne håndverkere.
Se flere husmodeller
Økosmart Atrium
Soverom: 3
BRA: 136.4 m2
Økosmart 5
Soverom: 3
BRA: 125.1 m2
Økosmart 4
Soverom: 3
BRA: 113.2 m2
Økosmart 3
Soverom: 3
BRA: 94.7 m2
Økosmart 2
Soverom: 2
BRA: 86.5 m2
Økosmart 1
Soverom: 2
BRA: 58.9 m2






