Beskrivelse
En flott herskapelig villa for skrånende tomter. Hermine har inngang på begge plan, og en del av underetasjen kan fint gjøres om til hybel om det er ønskelig.
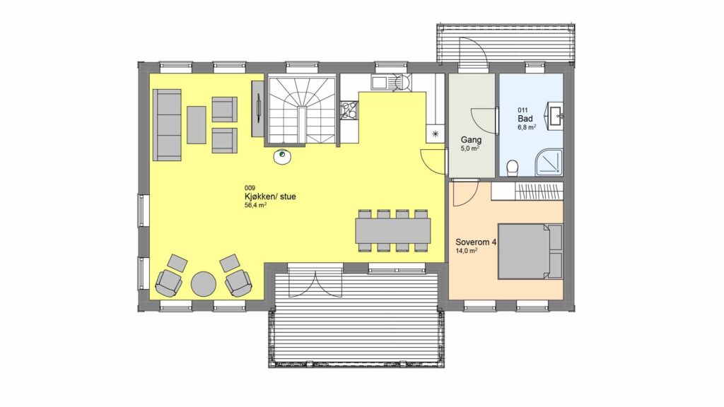
Dette innholdsrike huset har en stue- og kjøkkenløsning i hovedetasjen som gir et åpent og luftig inntrykk. Doble verandadører leder ut til en lun, overbygget balkong hvor kveldssolen kan nytes i ro og fred. På dette planet finnes også bad, gang og ett soverom. I underetasjen er det tre romslige soverom, bad, vaskerom, teknisk rom og to gode boder. En stor hall sørger for å gi deg en god velkomst når du kommer inn, og dette huset har mange muligheter for å kunne tilpasses til dine ønsker og behov.
Nøkkelinformasjon
Boligtype
Enebolig
BRA
209.8 m2
BRA innvendig
176.6 m2
Bredde
11 lm
Soverom
4
Gesimshøyde
6.2 lm
Tomt
Skrå tomt
BYA
127 m2
BRA utvendig
33.2 m2
Lengde
14 lm
Bad
2
Mønehøyde
8.4 lm
Se flere bilder av husmodell
Vi hjelper deg gjerne å gjøre tilpasninger
Ønsker du å gjøre endringer i planløsningen, eller tilpasse boligen til akkurat din tomt?
Vi hjelper deg med både store og små endringer, slik at drømmeboligen blir akkurat slik du vil ha den.
post@norheimshus.no

Ulik grad av ferdigstillelse
Vi leverer fire forskjellige grader av ferdigstillelse;
● Råbygg
● Elektroklart
● Snekkerferdig
● Nøkkelferdig
Graden av ferdigstillelse gjenspeiler seg i prisen. Perfekt for deg som vil gjøre egeninnsats, eller bruke egne håndverkere.







