Økosmart 5: moderne enebolig med store glassflater


Meget bra! Strålende oppfølging, bra kvalitet og fikser det man ønsker. Anbefaler de på det sterkeste! Selger følger opp fortløpende og prosjektleder er meget hyggelig og imøtekommende med de ønsker og krav man har.
– Glenn Stengrimsen
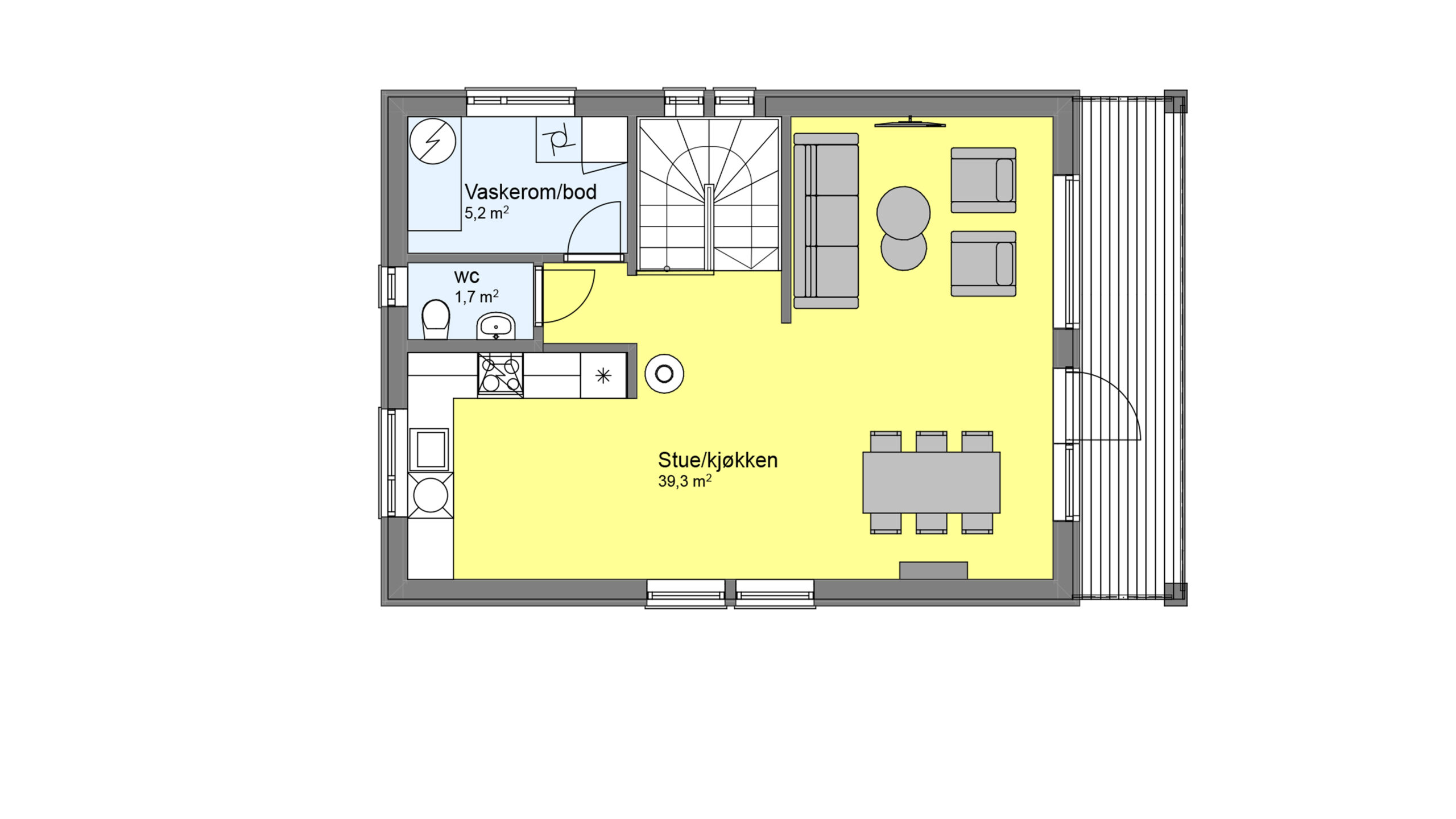
Planløsning


Utforsk Økosmart-serien
Økosmart Atrium
Soverom: 3
BRA: 136.4 m2
Økosmart 5
Soverom: 3
BRA: 125.1 m2
Økosmart 4
Soverom: 3
BRA: 113.2 m2
Økosmart 3
Soverom: 3
BRA: 94.7 m2
Økosmart 2
Soverom: 2
BRA: 86.5 m2
Økosmart 1
Soverom: 2
BRA: 58.9 m2
